中国北方工业多功能厅改造项目加紧施工
时间:2018年10月24日 11:47
李刚
一、工程概况
1、工程名称:中国北方工业多功能厅改造项目
2、工程地点:北京市西城区广安门南街甲12号
3、建筑规模:1813平米
4、本工程使用功能是比较全面,以室内改造为主,包括结构加固、装修工程、给排水工程、消防工程、暖通工程、电气工程、智能化工程。
二、施工重点和难点
对建筑的质量要求和使用功能要求较高。因此,对各专业队伍的紧密沟通与配合要求也是特别的高。特别是报告厅涉及舞台灯光和音响的部位,需要联系厂家、甲方、设计共同确认,在现有的空间和条件使其外观、使用用功能达到好的效果。
外墙石材和幕墙不仅要美观大方还要与北方大厦园内建筑相融合,使其看起来更像一个整体,更能体现北方工业特有的气质——庄重、整齐划一。
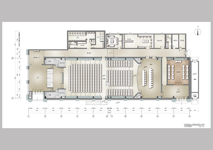
三、设计效果图片

平面布置图

大堂

会议室

贵宾接待室

洗手间

走廊
四、施工进展情况
北方多功能厅改造项目所有加固、钢结构已完成并验收通过。由于工期较紧,公司领导亲自现场指导,并增加专业工程师相互配合共同努力,项目整体完成情况比较顺利。

外墙石材及幕墙

室内龙骨安装
五、施工过程图片

外墙真石漆

休息室样板间

休息室样板间
总结
本工程使用功能全面,外观美观大气满足了建设方的使用需求及外观设计,在此感谢甲方对本次工程各方面的支持与帮助,本次工程中各专业队伍你追我赶共同完成进度目标,希望大家再接再厉,拧成一股绳,争取提前圆满完成北方多功能厅改造项目!











